「1階まるごと健康リフォーム」個別相談会
建て替えずに、“平屋の暮らし”を手に入れる方法
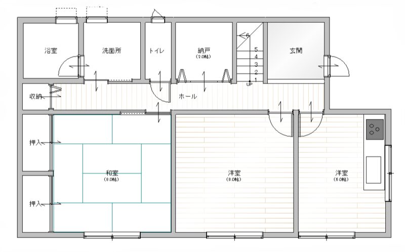
2階はそのまま。1階だけで完結する、理想の終の棲家へ
「いつかは夫婦ふたりで、ゆったり平屋で暮らしたい」
そんなふうに思ったことはありませんか?
でも、今の家を手放して建て替えるのって、やっぱりハードルが高いですよね。
思い出もあるし、お金のことも心配になります。
もし、今の家をそのまま活かして、
1階だけで暮らしが完結するようにできたらどうでしょう?
建て替えずに、“平屋のような暮らし”ができる。
そんな新しい選択肢を、ちょっとのぞいてみませんか?

- あなたもこんなお悩みありませんか?
✅洗濯物を干すために、毎日重い足取りで2階へ上がるのがしんどい。
✅夜中にトイレへ行くたびに、暗くて急な階段が少し怖い。
✅子ども部屋だった2階は、今では使われない物置状態に。
✅気がつけば、床のきしみや窓のすきま風など、家の老朽化が少しずつ気になるようになってきた

- そんな悩みを「1階まるごと健康リフォーム」がすべて解決します。
1階まるごと健康リフォームの4つの特徴
01 建て替えずに「平屋のような暮らし」を実現
洗濯・料理・入浴・就寝──暮らしに必要なすべての動線を1階に集約。 重い足取りで階段を上り下りする必要もなくなり、家事や移動の負担が驚くほど軽くなります。
- 階段の上り下りが不要に
- 家事動線がスムーズに
- 建て替えより低コスト・短工期

02断熱リフォームで健康と快適を両立
家の中の温度差は、年齢を重ねるほど身体に大きな負担を与えます。 高断熱・高気密化により、急激な温度変化による体への負担を大幅に軽減します。
- 急激な温度変化による体への負担を軽減
- 内窓設置で冷暖房効率アップ
- 24時間換気で空気環境も改善

03バリアフリー設計で“自立した暮らし”をサポート
小さな段差や開けにくいドアなど、日常の「ちょっとした不便」を解消。 安全で快適な毎日を支えるバリアフリー化を実現します。
- 開き戸から引き戸へ変更
- 手すりの設置で移動をサポート
- 段差解消でつまずき防止

04省エネ設備で家計にやさしく
エコキュートや省エネ設備の導入により、光熱費を大幅削減。 年間3〜5万円の節約効果が期待できます。
- エコキュートで給湯費削減
- 省エネ設備で電気代カット
- 年間3〜5万円の節約効果

リフォームプラン・参考価格
|
プラン名 |
内容 |
参考価格 |
|
断熱プラン |
|
500万円~600万円 |
|
省エネプラン |
|
700万円~800万円 |
|
バリアフリープラン |
|
900万円~1000万円 |
※木造2階建ての1階面積を20坪で想定、現場条件・設計内容で変動します。
ビフォーアフター
【成功事例】
築25年子供たちは独立して、夫婦2人暮らし。1階を理想の終の棲家に改修
施工内容:断熱プラン+バリアフリープラン+システムキッチン取替え
●1階天井裏(170mm)・1階外壁(100mm)・床下(100mm)ウレタン断熱材吹付 → 断熱効果 ● 防音断熱内窓設置・Low-E複層ガラス (アルゴンガス入り) → 断熱効果・結露軽減・遮音効果 ●玄関ドアを高断熱玄関ドアに交換(既存枠を利用したカバー工法) → 断熱効果・防犯効果 ●1階天井・1階内壁に気密シート施工 → 気密効果 ●壁掛け熱交換気システム → 部屋全体を換気・結露軽減 ●ユニットバス交換)→ 急激な温度変化による体への負担を軽減 ●間取り変更工事 → 毎日の家事や移動がラクになりま ●引き戸の設置 → 開け閉めがラク ●システムキッチン取替え → 最新機能でお手入れが簡単
施工面積:64.59㎡(19.53坪)
価格:990万円(設計料・諸経費・税込み) 工事期間: 25日間
お客様の声
紀の川市 S様
「住み慣れた住まいだけど、問題ばかりなので解消したい!」
こんなに古い家をどんな工事をすれば、住みやすくなるかと思い、陶彩館さんへ相談に行きました。設計士の方が親身になって相談にのってくれたので、したいことが具体的に考えれました。
リノベーションすることで、まだ若いうちに荷物の整理する機会が出来て良かったです。息子夫婦が帰ってきても、くつろげるスペースが出来ゆっくりと食事しながら会話が弾むので嬉しいです。 主人もリビングでテレビを観てくつろげるので,満足しています。
有田川町 S様
「古い家の寒さと老朽化している水廻りを一新!」
退職して10年が経ち、もうそろそろ水廻りを全部やり替えて、土間からフローリングへ工事して温かく過ごしたいと思い、以前からトイレ工事をして貰ったいた陶彩館へ相談しました。
最初から工事終わるまでいろいろな提案してくれて、わからないことが多くて不安だったのですが、親身になって提案してくれて安心しました。友達にも「いいね、おしゃれやね」って言って貰って大満足です。
サービスフロー
お客様に安心してリフォームを進めていただくために、私たちはきめ細やかなサービスフローと充実したサポート体制をご用意しています。
👉STEP1:無料個別相談 お客様の要望をヒアリングし、現状を把握します。専門の建築士が丁寧に対応いたします。
👉STEP2:無料建物調査 実際にお客様のお家にお伺いし調査いたします(床下調査・外壁調査・屋根調査・小屋浦調査・構造調査)
👉STEP3:調査報告・プラン提案 ご自宅の診断結果をご報告いたします。 現状をふまえた最適なプランをご提案します。
👉STEP4:お見積提出 内容を確認させていただいたうえで、お見積りをご提出いたします。
👉STEP5:ご契約 お見積書と詳細図面をご確認いただいた上で、正式なご契約と工事期間を決定いたします。契約締結後、詳細な打ち合わせを行い、工事の準備を進めます。
👉STEP6:着工 専門の職人が、高品質な工事を責任を持って進めてまいります。適切な検査を行い、品質管理にも万全を期します。また、工事の進捗状況は随時ご報告し、ご安心いただける体制を整えております。
👉STEP7:完了検査・お引き渡し 工事完了後は、お客様にお立ち会いいただき、細部までご確認のうえお引き渡しをさせていただきます。
👉STEP8:アフターサポート 3ヶ月・1年・2年ごとに無料点検を行い、リフォーム後も安心してお住まいいただけるようサポートいたします。さらに、設備機器には最長10年間の延長保証もご用意しており、万が一の際も安心です。
私たちは、お客様にご満足いただけるよう、きめ細かな対応と充実したサポート体制で、リフォームの全工程をしっかりとサポートいたします。
よくある質問(Q&A)
「1階まるごと健康リフォーム」に関して、お客様からよくいただくご質問とその回答をまとめました
Q1: 「1階まるごと健康リフォーム」とは、具体的にどのようなリフォームですか?
A1: 既存の2階建て住宅の1階部分に特化し、健康寿命の延伸と快適な暮らしを追求するリフォームサービスです。高断熱化、バリアフリー化、そして1階だけで生活が完結する「平屋空間」の実現を主な目的としています。
Q2 工期はどのくらいかかりますか?
A2: リフォーム内容によって異なりますが、断熱プランで2週間〜20日間、省エネプランで2週間〜3週間、バリアフリープランで3週間〜5週間が目安となります。工事期間中もお客様の生活に支障がないよう、最大限配慮いたします。
Q3: 補助金は利用できますか?
A3: はい、ご利用いただけます。先進的窓リノベ事業や子育てエコホーム支援事業など、国や地方自治体の様々な補助金制度を活用できます。複雑な申請手続きは、当社が代行いたしますのでご安心ください。
Q4: リフォームローンは利用できますか?
A4: はい、ご利用いただけます。提携している金融機関のリフォームローンをご紹介し、お客様のライフプランに合わせた返済シミュレーションも行います。
Q5: 2階部分はリフォームしないのですか?
A5: 「1階まるごと健康リフォーム」は、主に1階部分の快適性と安全性を高めることに特化しています。2階部分は、収納やゲストルームとして活用するなど、お客様のニーズに合わせてご提案することも可能です。
Q6: 相談だけでも費用はかかりますか?
A6: 無料相談・現地調査は無料です。お客様のご要望をじっくりお伺いし、最適なプランをご提案いたしますので、まずはお気軽にご相談ください。
Q7: 遠方でも対応してもらえますか?
A7: まずはご相談ください。対応エリアについては、個別にご案内させていただきます。オンラインでのご相談も可能です。
イベント詳細
■ イベント名
「1階まるごと健康リフォーム」個別相談会
■ 開催期間・時間
・期間:8月15日(金)〜8月24日(日) ・時間:10:00〜17:00 (完全予約制)
■ 会場
陶彩館ショールーム(岩出市畑毛306-2)
※無料駐車場あり
■ 参加費
無料
■ 当日の流れ(約1時間)
- 「1階まるごと健康リフォーム」の内容をご紹介 スライドを用いて、リフォームの具体的な内容や特長をわかりやすくご説明いたします。
- 住まいの健康診断 ご自宅の断熱性や気密性などをチェックシートを使って診断。 これからも安心して住み続けられるかどうか、住まいの状態を客観的に把握できます。
- 個別相談会(現状と将来の暮らし) 暮らしの中で感じているちょっとした困りごとから、これからの生活へのご希望まで、何でもお聞かせください。あなたにぴったりの住まい方を一緒に考えさせて頂きます。
■ ご来場特典
☑︎ 住まいの無料点検サービスを実施! 実際にご自宅へお伺いし、床下・外壁・屋根・小屋裏などを丁寧に調査いたします。調査後は、診断報告書とあわせて、必要に応じた改修プランをご提案いたします。
☑︎ 「建て替えずに“平屋の暮らし”を叶える方法」無料ガイドブック進呈! 「建て替えたいけど、費用も手間もかかりすぎる…」そんなお悩みを解決する一冊です。
陶彩館が選ばれる理由
- 創業50年安心と信頼の実績
和歌山県と大阪府泉佐野市を中心に、創業50年 施工実績54.165件のリフォーム専門店です。水回り、屋根外壁、省エネ、バリアフリーなど、住まいのリフォーム全般に対応しています。

- 地域最大級の体験型ショールーム 210坪の体験型のショールームがあり、バリアフリー対応で自由に見て回ることができます。様々なメーカーのシステムキッチンやシステムバス、トイレ、洗面化粧台など品揃えし、比較、そして体感できるショールームとなっています。ショールームアドバイザーが各メーカーの商品の特徴や違い、使い勝手など、カタログでは伝わりにくい細かな部分も丁寧にご説明させていただきます。

- お客様の理想を実現する提案力 積み重ねてきた施工実績は54,165件以上。<2024年12月1日現在>圧倒的な経験とノウハウを蓄積し、ご提案に活用しています。リフォームアドバイザーや建築士、増改築相談員、コーディネーターといった数々の有資格者が皆さまの理想の住まいをサポート。お客さまにあった十人十色なリフォームプランをご提案しています。

- 工事後も安心のサポート体制 リフォーム後からが、本当の長いお付き合い。お電話1本でお客さまのお困りごとに対応できるよう、365日体制で実施しています。当社は設備・内装・大工・塗装などの工事をした箇所に、自社独自の工事保証書を発行しています。工事保証:最長10年間の無料長期保証 設備保障:最長10年間の有償長期保証

建て替えなくても、「平屋のような暮らし」は実現できます
最近、シニア層を中心に「平屋回帰」の人気が高まっています。階段の上り下りがなく、動線がシンプルで、家族との距離も近くなる──そんな暮らしやすさが魅力です。
とはいえ、今の2階建て住宅を平屋に建て替えるには多額の費用がかかり、簡単には決断できないという声もあります。
そこで私たちは、「住み慣れた家で、安心して長く暮らし続けたい」という想いに寄り添い、建て替えよりも負担を抑えつつ、理想の暮らしを実現する方法として「1階まるごと健康リフォーム」をご提案しています。
このリフォームでは、生活の中心を1階に集約。高断熱改修により、ヒートショックや熱中症といった健康リスクを軽減し、冷暖房効率も向上。光熱費の削減にもつながります。
健康・省エネ・安心を備えた“平屋のような暮らし”を、今の住まいで実現できる──それが「1階まるごと健康リフォーム」です。
まずは相談会で、どんな暮らし方が可能かを一緒に考えてみませんか?
【今すぐご予約ください】
✅ 電話予約:0120-6-10312(9:00〜18:00)
✅ Webフォーム予約は下記から
シニア住宅専門店Home&Living 陶彩館
| 開催日程 | 8月15日~8月24日まで【水曜日を除く毎日開催】(予約制) 予約承り時間/10:00~17:00 |
|---|---|
| 開催場所 | 陶彩館岩出本店ショールーム(岩出市畑毛306-2) Google Map |
| イベント詳細 | ■ ご来場特典 ☑︎ 住まいの無料点検サービスを実施! 実際にご自宅へお伺いし、床下・外壁・屋根・小屋裏などを丁寧に調査いたします。 ☑︎ 「建て替えずに“平屋の暮らし”を叶える方法」無料ガイドブック進呈! 「建て替えたいけど、費用も手間もかかりすぎる…」そんなお悩みを解決する一冊です。 |
| TEL | 電話予約:0120-6-10312(9:00〜17:00) |

