百家25 【子どもや孫が泊まれる25坪の平屋】
「子どもが独立しても、
これからは家族が集まる時間を大切にしたいと思うようになった。」
そんなご夫婦に選ばれているのが、
25坪の平屋です。
子どもや孫が帰ってきたときも、
無理なく泊まれる住まい。
家族との時間を、
これからも大切にできる住まいです。
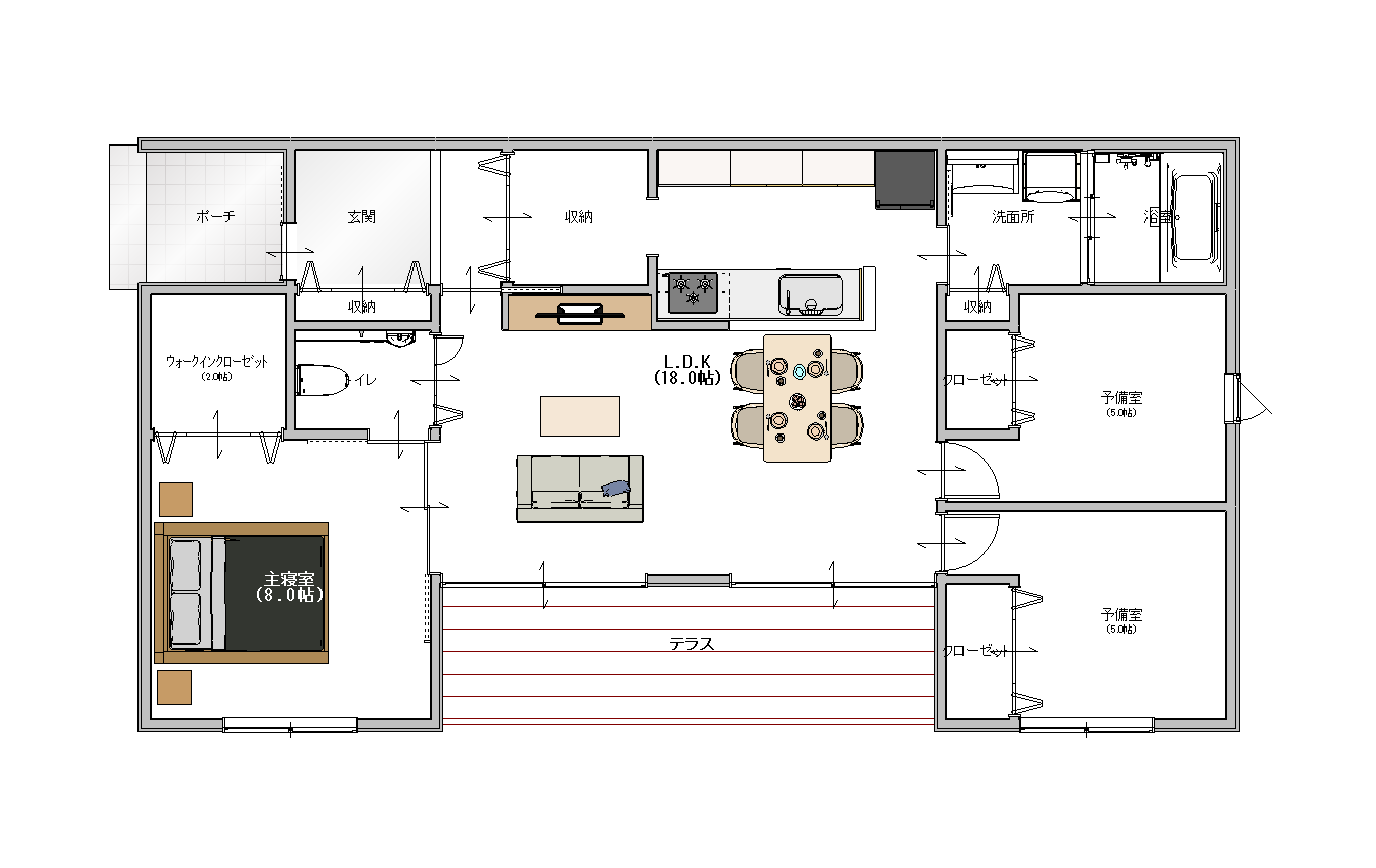
基本情報
| 項目 | 内容 |
|---|---|
| 延床面積 | 84.46㎡(25.55坪) |
| 間取り | 3LDK |
| 想定家族 | 夫婦2人+2 |
| 本体価格 |
この平屋は、
家族が集まる暮らしを考えて設計されています。
特徴
- 子どもや孫が泊まれる個室スペース
- 家族で過ごせるゆとりのあるLDK
- 生活空間と分けた落ち着いた寝室配置
家族が来ても無理なく過ごせる、
安心できる住まいです。


室内は、
家族が集まっても窮屈にならないよう、
ゆとりのある空間に設計しています。
LDKを中心に、
自然と家族が集まる間取りとしています。
また、段差のない設計で、
将来も安心して暮らせる住まいです。
住宅性能
百家の家は「健康寿命を延ばす住まい」を目指しています。
主な性能
-
断熱等級6(UA値0.46以下)
-
気密性能(C値0.7以下)
-
耐震等級3相当(建築基準法の1.5倍の耐震性能)
-
省令準耐火仕様(火災保険料が約半額)
断熱性能を高めることで
-
冬の寒さ
-
ヒートショック
-
光熱費
の負担を減らすことができます。

こんな方におすすめ
- 子どもや孫が泊まりに来ることがある
- 家族が集まる時間を大切にしたい
- 来客時でも無理なく過ごせる住まいにしたい
- これからも家族とのつながりを大切にしたい
平屋無料プラン作成
「自分の土地には
どんな平屋が建てられるの?」
そんな方のために
無料で平屋プランを作成しています。
-
土地に合わせた間取り提案
-
概算費用
-
建て替え相談
お気軽にご相談ください。
